Réf:

AG985-5713953

Publié le:

01 Oct 2025

property image
property image
property image
8

Local commercial à vendre Cesson (77240)

707 200 €

Surface

442 m2

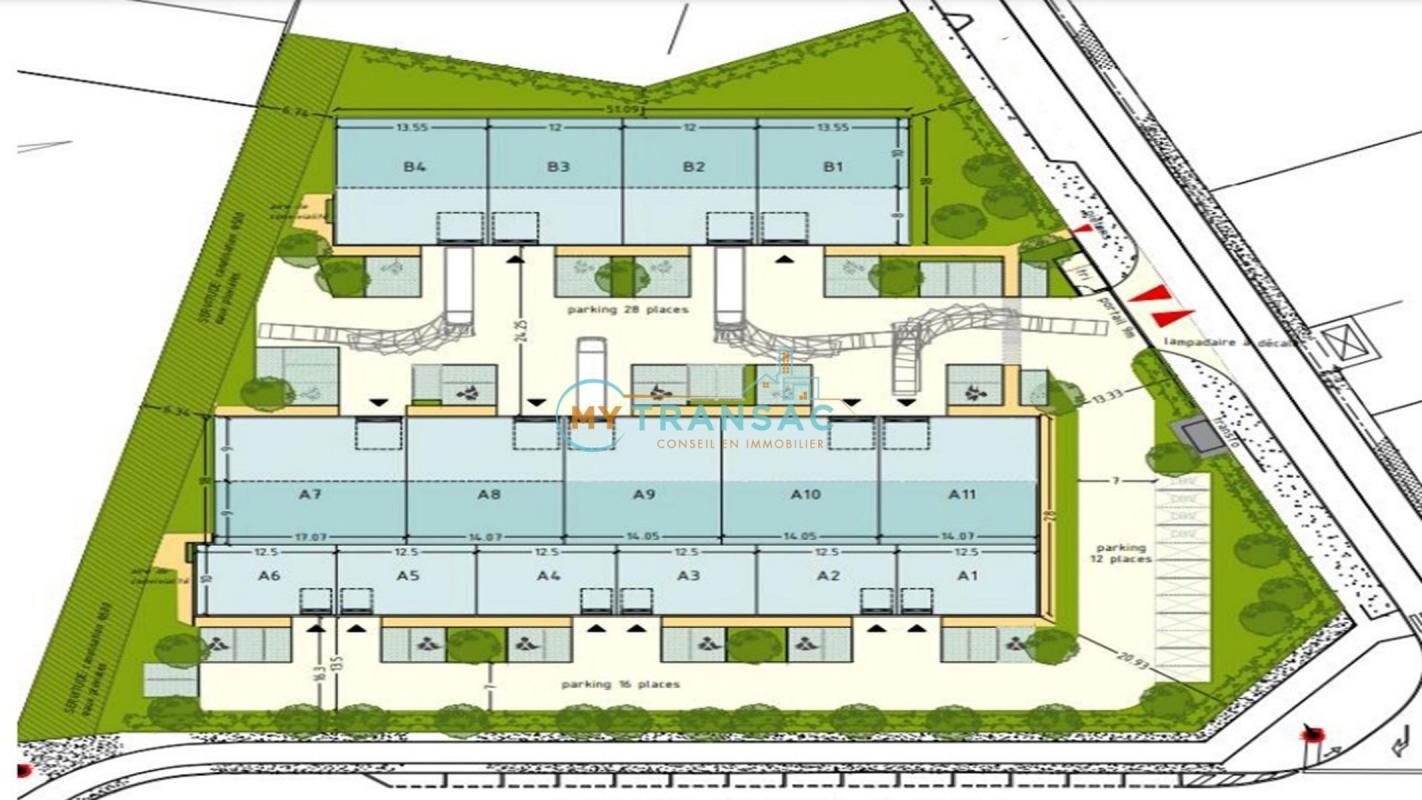
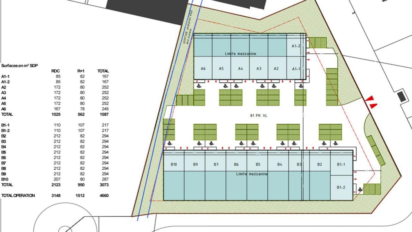
My Transac vous propose à la VENTE des locaux d'activités neufs comprenant 15 cellules sur 2 bâtiments surface à partir de 117m², 333m² et 442m²Possibilité de réunir plusieurs surfacesPrestations Activité :- Hauteur libre : 7m50- Porte sectionnelle : 2,7m x 3,5m- Électricité : tarif bleu ou jaune selon la cellule- Dallage en béton surfacé quartz (surcharge 3T/m²)- Voirie lourde pour les aires de man?uvre et decirculation- Site clos et sécurisé- Accès par un portail coulissant motorisé réglé sur horloge- Système d'interphone et commande du portail actionnable par téléphone depuis chaque lot- Label BiodiverCity- Certification BREEAMPrestations Mezzanine :- Desservie par escalier en béton, main courante métallique et marches carrelées- Plancher béton dimensionné pour 250 kg/m² de surcharge utile et 100 kg/m² de charge constante- Chauffage électrique par convecteurs radiants électriques- Revêtement du sol en moquette en dalles 50x50 cm- Faux-plafonds en dalles minérales 600x600 mm montées sur ossature métallique- Eclairage par luminaires LED de 600x600 mm intégré au faux-plafond, 300 lux moyenAccès :Autoroute A5 sortie n°12 Cesson ? Vert Saint Denis (6 min)Francilienne N104 via A5b (10 min)RER D « Gare de CESSON » (15min)Bus 31 et 36 arrêts Montdauphin et Fontaine Ronde (5min)Conditions financières :Prix de vente : 1800 Euros HT/m²en fonction des lotsHonoraire de commercialisation : 5% HT du prix net vendeur

Installations

N'a pas d'installation pour ce bien

Informations sur le Bien

Date de construction

-

Chauffage et diagnostics

Diagnostic de performance energétique (DPE)

N'a pas de classe spécifiée pour ce bien

Indice d'émission de gaz à effet de serre (GES)

N'a pas de classe spécifiée pour ce bien

Localisation

alert image

Vous ne trouvez pas encore le logement idéal ?

Recevez une notification par e-mail dès qu’un bien correspondant à vos critères est disponible.

Ce logement vous plaît ?

Contactez le agence

user photo

MY TRANSAC

6, rue D'Armaille

Demande d'information