Réf:

AG1013-9851

Publié le:

05 Feb 2026

property image
property image
property image
10

Maison à vendre Fontenay-sous-bois (94120)

550 000 €

Nombre de pièces

4

Surface

80 m2

Nombre de chambres

3

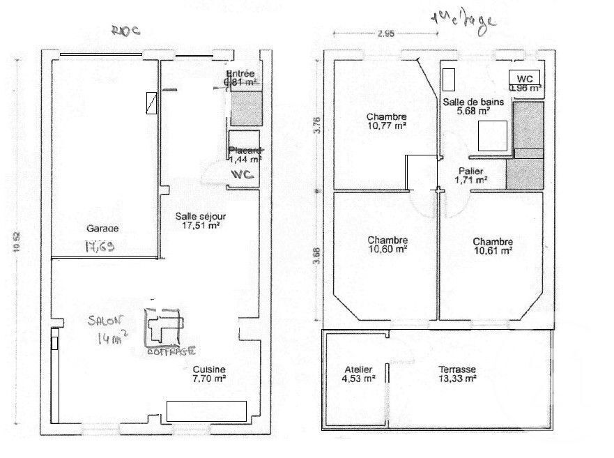
Votre agence Century21 Dalayrac vous propose une maison 1900 située à 5 mn du RER bois. Ce bien dispose de 4 pièces principales d'une superficie de 80 m² habitable avec possibilité d'ouvrir sur le garage / atelier de 17 m². Une terrasse de 14 m² donnant sur jardin à l'étage. En rez de chaussée elle est composée d'un séjour avec cuisine ouverte et aménagé et WC séparé à l'étage, trois chambres et une salle d'eau. Grenier au dessus. Rénovation récente. Ecole Pasteur à deux pas et commerce des Rigolots. Montant estimé des dépenses annuelles d'énergie pour un usage standard entre 266.0 ¤ et 365.0 ¤, indexées à l'année 2021 (abonnements compris). Bien proposé par Olivier JAMES EI, agent commercial (RSAC 398391961).Informations LOI ALUR :
Honoraires charge vendeur. (gedeon_89452_32320536)

Installations

  • Parking

Informations sur le Bien

Date de construction

-

Chauffage et diagnostics

Diagnostic de performance energétique (DPE)

?
E

Indice d'émission de gaz à effet de serre (GES)

?
E

Localisation

alert image

Vous ne trouvez pas encore le logement idéal ?

Recevez une notification par e-mail dès qu’un bien correspondant à vos critères est disponible.

Ce logement vous plaît ?

Contactez le agence

user photo

CENTURY 21 DALAYRAC

110, rue Dalayrac

Demande d'information